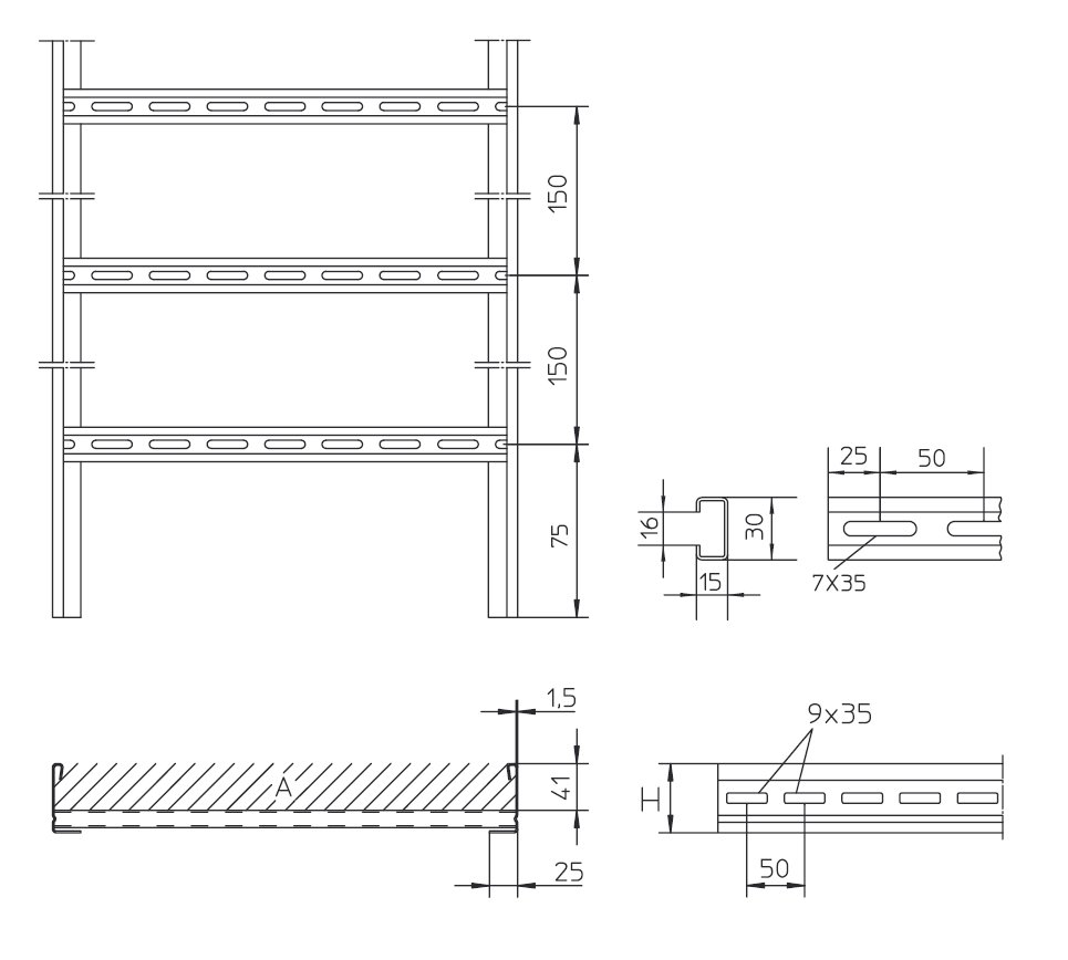
Drabinka kablowa, wysokość=60 mm.
Drabinka kablowa wyposażona w perforowane wzdłużnice oraz zgrzewane szczeble. Szczeble wykonane są z profilu w kształcie litery „C”. Drabinka utrzymuje ciągłość potencjału zgodnie z DIN EN 61537.
Produkt dopuszczony do stosowania w systemie E90. Wartość Pmax ma zastosowanie jeżeli drabinka stosowana jest jako drabinka pionowa.




