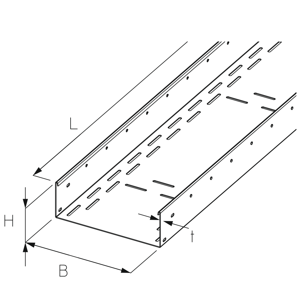
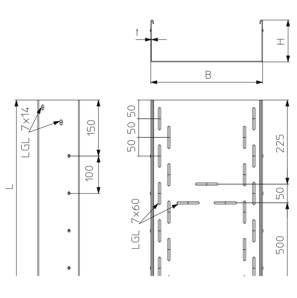
Kanał kablowy, perforowany, wysokość=110 mm.
Kanał kablowy podłogowy wykonany ze stali ocynkowanej metodą Sendzimira o wysokości bocznej 110 mm. Szerokości kanału - od 100 mm do 600 mm. Dostępne długości fabryczne 1000 mm, 1500 mm, 3000 mm. W celu rozłożenia obciążeń w kanale o szerokości ≥ 300 mm należy zainstalować jedną przegrodę. Dla szerokości kanału ≥ 500 mm zainstalować dwie przegrody. Dla pojedynczego toru kablowego bez przegrody nie należy przekraczać szerokości 200 mm. Kanały podłogowe BK 110 posiadają w burtach bocznych przetłoczone perforacje pozwalające na indywidualny montaż m.in. zacisków wyrównujących potencjał.

